Procurar imóveis Anunciar imóvel Como funciona

Apartamento T2

240 000 €

2 666,67 €/m²

117, Rua 5 de Outubro, Almeirim, Santarém, 2080-052, Portugal

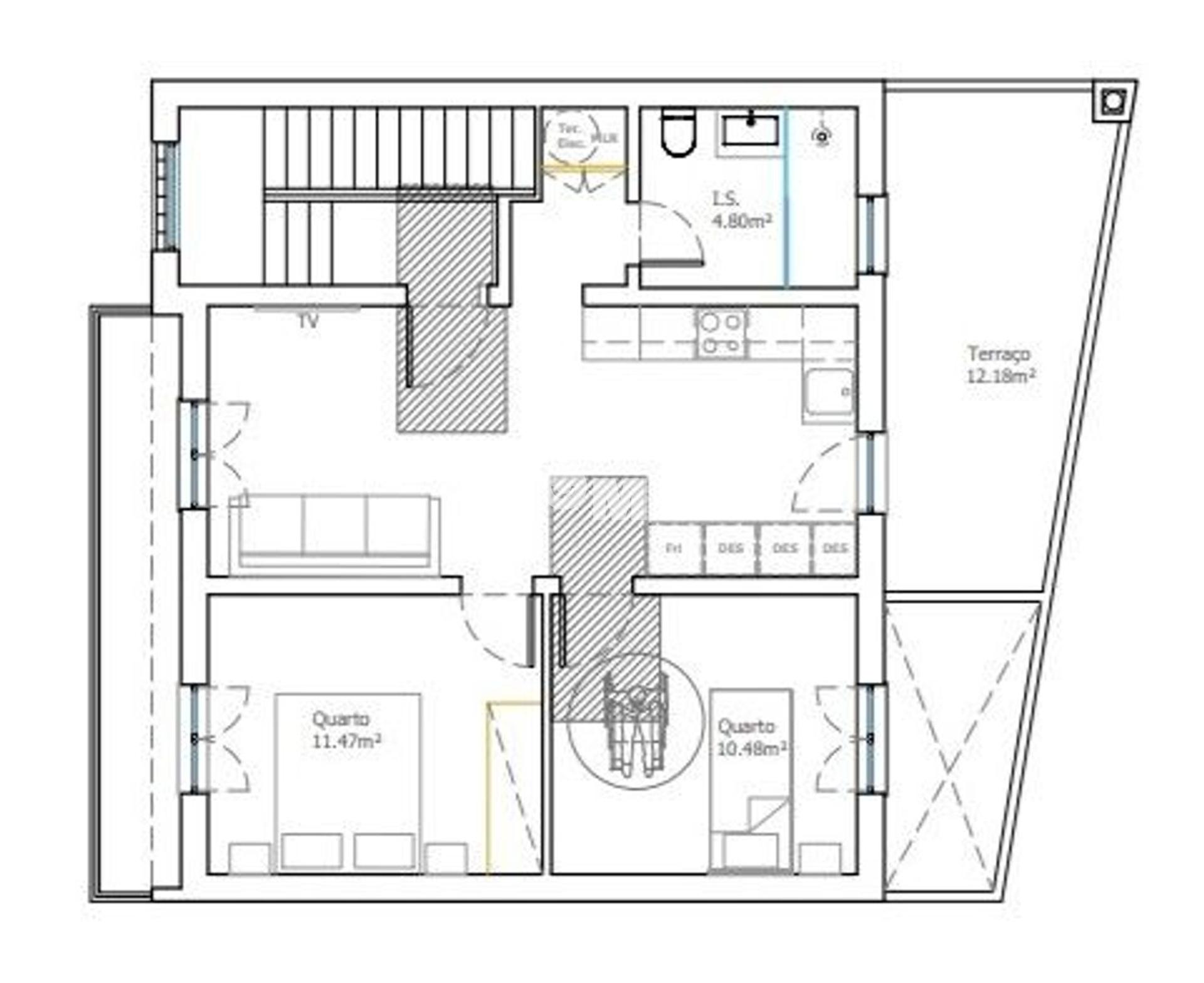
Apartamento • T2 • 90m²

Ref.: 425072

Apartamento com obra iniciada, situado no centro da Vila de Almeirim, com projecto na Câmara Municipal para renovação total, incluindo telhado, toda a canalização, electricidade e fachada com capoto, no 1º andar. Contém cozinha com despensa/casa das máquinas, terraço e sala de estar em open space, dois quartos e uma casa de banho. É possivel a escolha de cores e acabamentos (cozinha, ladrilhos, vinílicos e portas).

Certificados

Eficiência energética • C

Características do imóvel

  • Varanda

  • Terraço

Anúncio em Validação

Contacta o anunciante

A Homie filtra automaticamente spam e prospeção comercial não autorizada para proteger os utilizadores. Saber mais.

Tem a certeza que deseja aprovar esta edição? Após a aprovação, o anúncio será atualizado.

Tem a certeza que deseja rejeitar esta edição? Após a rejeição, a edição será eliminada e o anúncio não será atualizado.

Tem a certeza que deseja colocar este imóvel em negociação? Após a negociação, o imóvel manter-se a se visível com a devida indicação.

Tem certeza de que deseja encerrar o anúncio desta propriedade? Ele será removido das listagens públicas e não estará mais visível para os interessados.

Tem certeza de que deseja eliminar o anúncio desta propriedade? Ele será completamente removido.

Tem a certeza que deseja aprovar este selo? Após a aprovação, o selo ficará visível.

Tem a certeza que deseja remover este imóvel de negociação?

Pretendes ter o serviço Sign? Vê aqui as vantagens

Tem a certeza que deseja reivindicar este anúncio? Após a reivindicação, poderá gerir o anúncio na sua página de gestão de imóveis.

Valorizamos a tua privacidade

Na Homie usamos cookies essenciais para garantir o funcionamento adequado do website. Eles permitem funcionalidades básicas como navegação e acesso seguro a áreas do site. Sem estes, certas funcionalidades podem não estar disponíveis ou não funcionar como esperado. Conhece a nossa Política de Cookies.