Procurar imóveis Anunciar imóvel Como funciona

Comercial

120 000 €

1 500,00 €/m²

74, Praça do Comércio, Almedina, Baixa, Coimbra (Sé Nova, Santa Cruz, Almedina e São Bartolomeu), Coimbra, 3000-116, Portugal

Comercial • Não aplicável • 80m²

Ref.: 494882

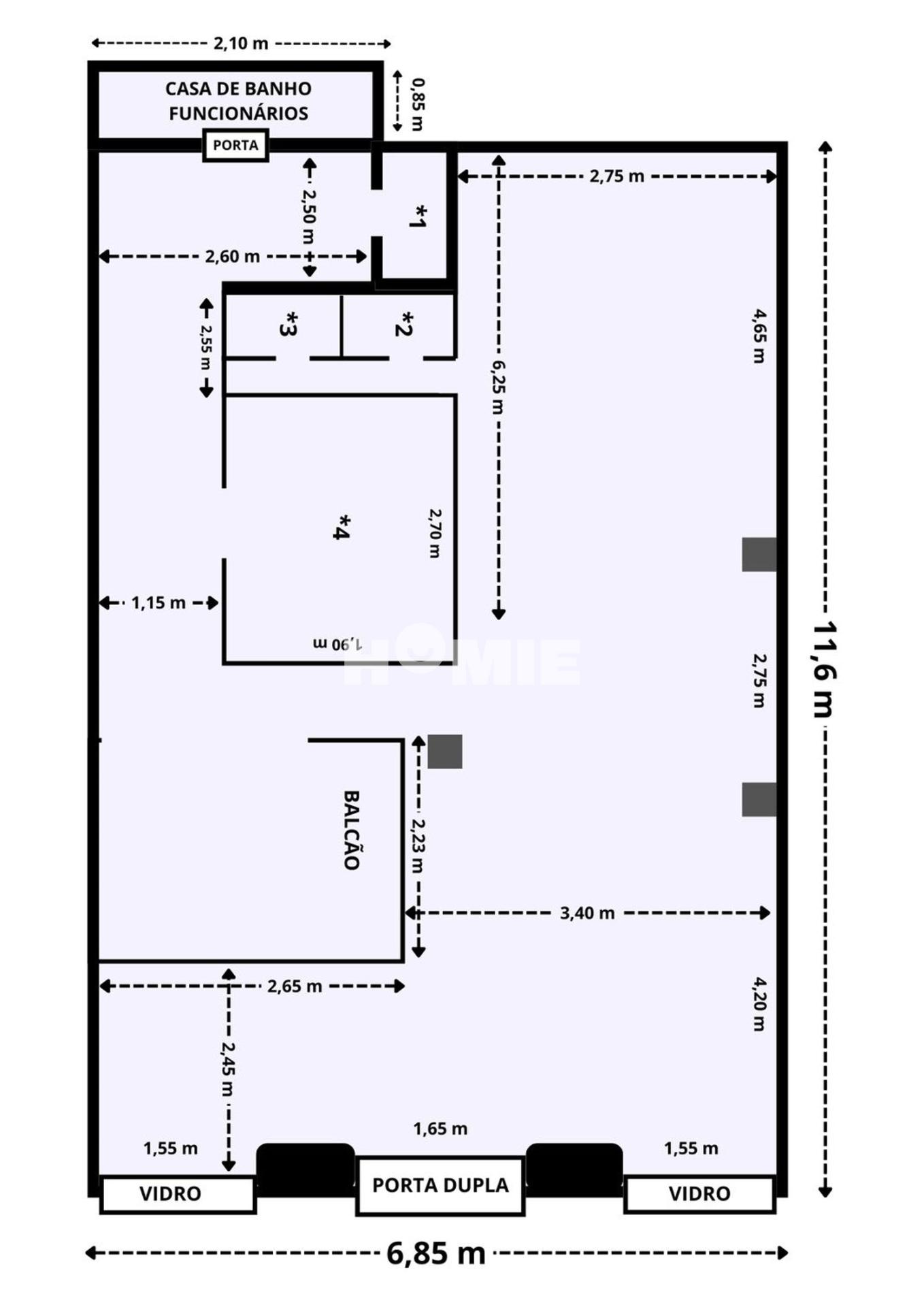
Grande Oportunidade única de Trespasse/Cedência de Posição Contratual de Espaço Comercial na zona mais turística da cidade de Coimbra, Praça do Comércio, Baixa de Coimbra, com esplanada de aprox. 80m2 e interior 80m2. O espaço ideal para ancorar a presença da sua marca numa zona turística de elevado valor. Situado no coração da cidade de Coimbra, na zona história e cultural, a Baixa de Coimbra, numa zona que recebe diariamente milhares de turistas individuais e grupos. Com a recente chegada de algumas empresas revolucionárias à nossa Baixa, a Praça do Comércio cada vez mais caminha para ser um espaço amplo de referência na área da restauração, bar e entretenimento em Coimbra, também ajudado pela breve inauguração do Metro-Bus na Portagem (150 metros do local). Este espaço é perfeito para algum negócio de restauração, brunch, cafetaria, pastelaria, gelataria, chocolateria, entre outros que beneficiem estratégicamente de uma das maiores esplanadas da Baixa. - Eletrificação renovada - Chão em cerâmico - Zona de cozinha com canalizações já instaladas - Balcão com canalizações já instaladas - Sistema de gradeamento de segurança eléctrico - Tubagens de extração já instaladas - Pré-instalação de gás no exterior - Esplanada aprox. 80m2 - Interior 80m2 - 3 casas de banho (H/M + funcionários) - Espaço para arrumos Acresce a renda mensal. Naturalmente, estou disponível para esclarecer quaisquer questões. Entre em contacto, preferencialmente por telemóvel, para maior tempestividade.

Certificados

Eficiência energética • Em trâmite

Características do imóvel

  • Varanda

Anúncio em Validação

Contacta o anunciante

A Homie filtra automaticamente spam e prospeção comercial não autorizada para proteger os utilizadores. Saber mais.

Tem a certeza que deseja aprovar esta edição? Após a aprovação, o anúncio será atualizado.

Tem a certeza que deseja rejeitar esta edição? Após a rejeição, a edição será eliminada e o anúncio não será atualizado.

Tem a certeza que deseja colocar este imóvel em negociação? Após a negociação, o imóvel manter-se a se visível com a devida indicação.

Tem certeza de que deseja encerrar o anúncio desta propriedade? Ele será removido das listagens públicas e não estará mais visível para os interessados.

Tem certeza de que deseja eliminar o anúncio desta propriedade? Ele será completamente removido.

Tem a certeza que deseja aprovar este selo? Após a aprovação, o selo ficará visível.

Tem a certeza que deseja remover este imóvel de negociação?

Pretendes ter o serviço Sign? Vê aqui as vantagens

Tem a certeza que deseja reivindicar este anúncio? Após a reivindicação, poderá gerir o anúncio na sua página de gestão de imóveis.

Valorizamos a tua privacidade

Na Homie usamos cookies essenciais para garantir o funcionamento adequado do website. Eles permitem funcionalidades básicas como navegação e acesso seguro a áreas do site. Sem estes, certas funcionalidades podem não estar disponíveis ou não funcionar como esperado. Conhece a nossa Política de Cookies.